| 41 |
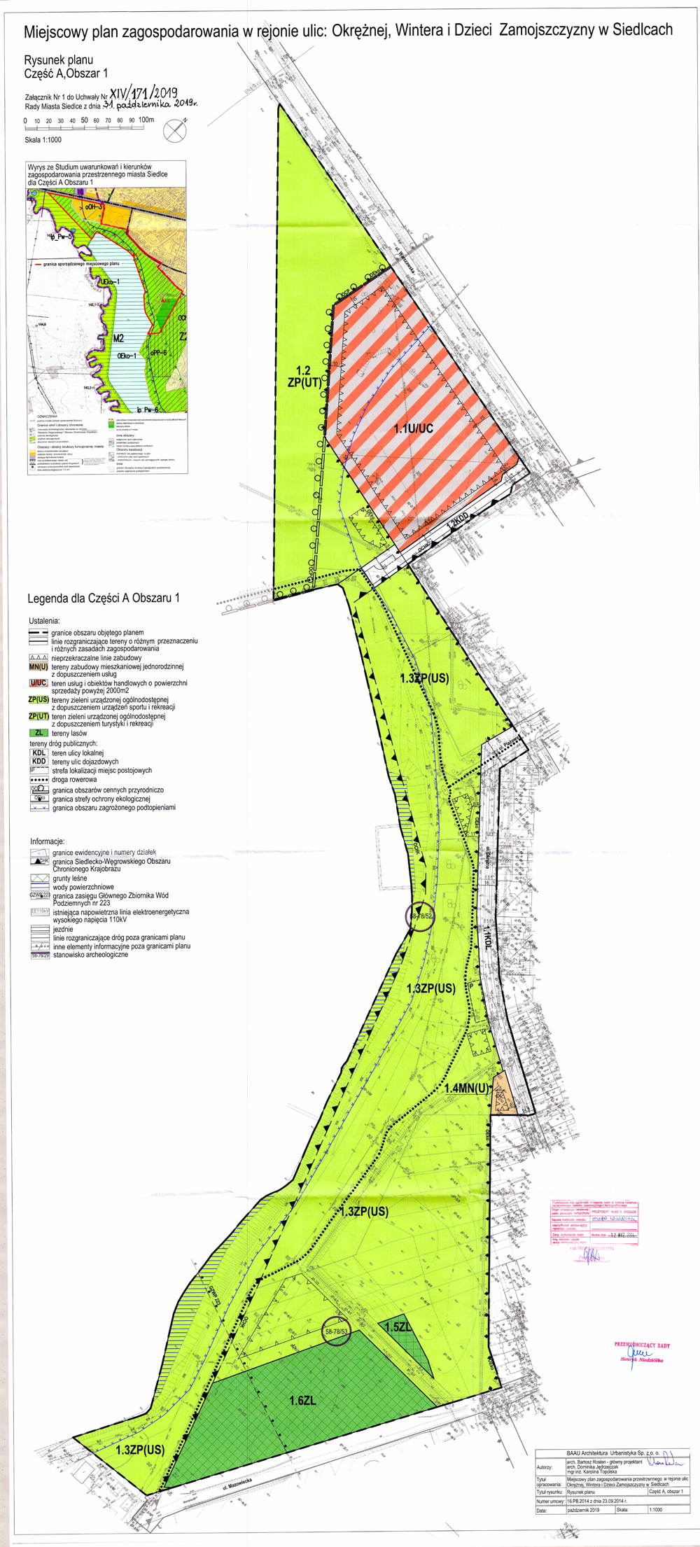
Miejscowy plan zagospodarowania przestrzennego w rejonie ulic: Okrężnej, Wintera i Dzieci Zamojszczyzny w Siedlcach - część A |
Uchwała RMS nr XIV/ 171 / 2019 z dnia 31 października 2019 r. Załącznik nr 2 Załącznik nr 3 |
Dz. Urz. Woj. Maz. z 2019 r. poz. 14737 |

BIP