|
6 |
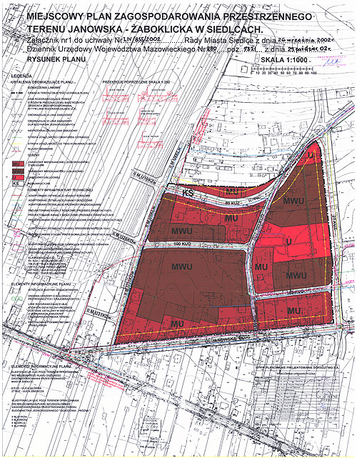
Miejscowy Plan Zagospodarowania Przestrzennego terenu "Janowska - Żaboklicka" |
Dz. Urz. Woj. Mazowieckiego |
|
6 |
Miejscowy Plan Zagospodarowania Przestrzennego terenu "Janowska - Żaboklicka" |
Dz. Urz. Woj. Mazowieckiego |