|
16 |
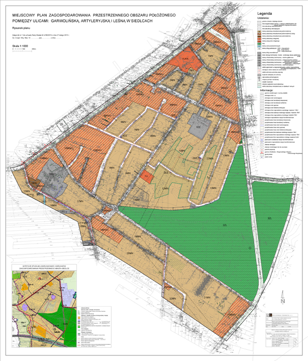
Miejscowy plan zagospodarowania przestrzennego obszaru położonego pomiędzy ulicami: Garwolińską Artyleryjską i Leśna w Siedlcach |
Dz. Urz. Woj. Mazowieckiego |
|
16 |
Miejscowy plan zagospodarowania przestrzennego obszaru położonego pomiędzy ulicami: Garwolińską Artyleryjską i Leśna w Siedlcach |
Dz. Urz. Woj. Mazowieckiego |