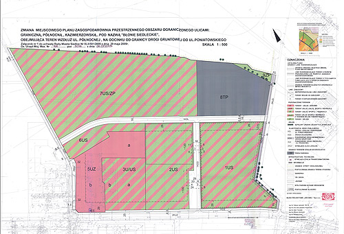
| 19 | Zmiana miejscowego planu zagospodarowania przestrzennego obszaru ograniczonego ulicami: Graniczną, Północną, Kazimierzowską, pod nazwą "Błonia Siedleckie", obejmująca teren wzdłuż ul. Północnej, na odcinku od granicy drogi gruntowej do ul. Poniatowskiego |
Uchwała R.M. Nr XLII/591/2009 z dnia 29.05.2009 r. |
Dz. Urz. Woj. Mazowieckiego Nr 106 poz. 3036 |
Strona główna
Urząd Miasta
19 - Zmiana miejscowego planu zagospodarowania przestrzennego obszaru ograniczonego ulicami: Graniczną, Północną, Kazimierzowską, pod nazw. "Błonia Siedleckie", obejmująca teren wzdłuż ul. Północnej, na odcinku od granicy drogi gruntowej do ul. Poniatowskiego

BIP

