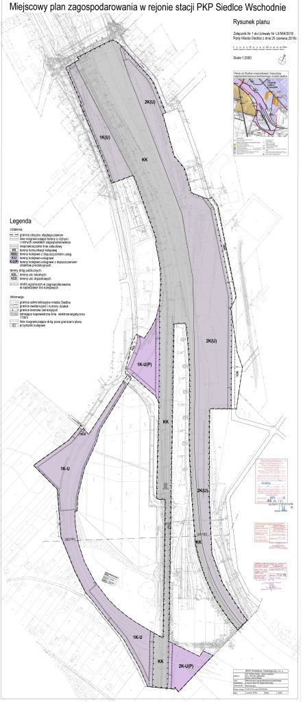
| 40 | Miejscowy plan zagospodarowania przestrzennego w rejonie stacji PKP SIEDLCE WSCHODNIE | Uchwała R. M. LII/584/2018 z 25 czerwca 2018 | Dz. Urz. Woj. Maz. z 2018 r. poz. 7289 |
| 40 | Miejscowy plan zagospodarowania przestrzennego w rejonie stacji PKP SIEDLCE WSCHODNIE | Uchwała R. M. LII/584/2018 z 25 czerwca 2018 | Dz. Urz. Woj. Maz. z 2018 r. poz. 7289 |